Wohnen am Strom

Wohnungsbau in Köln-Stammheim
Realisierungswettbewerb im Rahmen der Regionale 2010

durchwohnen, kleinteilig, dicht

Konzept

In einem internationalen Wettbewerb ist ein Wohnkonzept hinter dem 3m hohen Hochwasserdeich in Köln-Stammheim im Kölner Nord-Westen zu entwickeln.

Entwurfsbestimmende Parameter sind gute Blickbeziehungen zum Rhein von jeder Wohnung und die optimale Ausrichtung zur südwestlichen Belichtung. Städtebaulich haben wir das Projekt aus der kleinteiligen Bebauung von Köln-Stammheim abgeleitet und zugleich einen gemeinschaftlich zu nutzenden Platzraum für alle Bewohner geschaffen.

Querschnitt
Querschnitt mit Raumzusammenhängen

Typus

Wir haben Stadthäuser entwickelt, die in ihrer Reihung den Raum am Ortseingang stärker fassen. Jedes Stadthaus profitiert von Ausblicken in die Rheinauen und von der Süd-West-Besonnung.

Nutzungszusammenhänge
Nutzungszusammenhänge
Tageslichtkonzept
Tageslichtkonzept

Konstruktion

Die Gebäudestruktur basiert auf einer Schottenbauweise, die schnell und wirtschaftlich zu realisieren ist. Die Obergeschosse der Stadthäuser haben wir in Holzbauweise auf den massiven Sockel aufgesattelt. Diese Hybridbauweise ermöglicht einen hohen Vorfertigungsgrad und damit eine kurze Bauzeit.

Grundriss Obergeschoss
Grundriss Obergeschoss
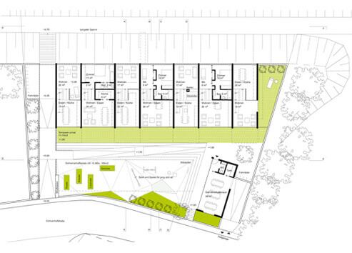
Grundriss Erdgeschoss
Grundriss Erdgeschoss

Projektverantwortliche

Auslober:
Regionale 2010

Architektur:
bk2a architektur in Kooperation mit Will Architekten seit 2015 firmierend als karzelwillkarzel Architekten, Köln

Projektdaten

Nutzfläche:
970m²

Bruttorauminhalt:
2.750m³

Grundstücksgröße:
2.200m²