Haus H

Raum mit Domsicht

Energetische Optimierung und Um-/ Ausbau eines Privathauses in Bonn, Baujahr 1972

ausgezeichnet mit dem Landespreis Architektur und Energie NRW 2008

ergänzt, geordnet, geöffnet

Konzept

Wunsch der Bauherren ist ein energetisch optimierter Gebäudestandard und eine Reorganisation der Wohnflächen mit Ausbau des Dachgeschosses.

Der Bauherr arbeitet in Köln, sein Wunsch den Dom und die Rhein-Ebene zu sehen ist Leitmotiv des Entwurfes. In das bestehende Schieferdach haben wir einen röhrenförmigen Dachkörper eingeschoben und damit den Blick zum 35km entfernten Dom gerahmt.

Wir haben das Haus behutsam saniert und die Grundrisse reorganisiert.

Schwarzplan
Schwarzplan mit Eingliederung in Kontext
Konzeptgraphik
Konzeptgraphik

Konstruktion

Der neue Dachkörper wird durch einen hohen Vorfertigungsgrad binnen eines Tages montiert und das Dach wieder geschlossen.

Das bestehende Schiefer-Dach wird minal perforiert und in Teilbereichen ergänzt. Durch die Spiegelung der Hülle des Dachkörpers nimmt sich das neue Volumen zurück.

Ergänzung
Ergänzung
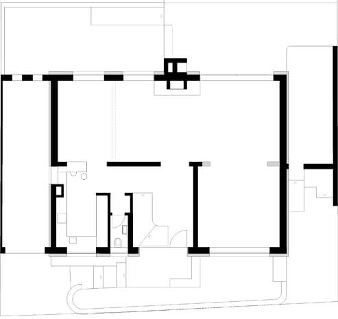
Grundriss Erdgeschoss
Grundriss Erdgeschoss
Grundriss Obergeschoss
Grundriss Obergeschoss
Grundriss Spitzboden
Grundriss Spitzboden
Detailschnitt
Detailschnitt

Energiekonzept

Wir haben das bestehende, vor der Ölkrise realisierte Haus, auf einen energetischen Standard gehoben, der einem Passiv-Haus nahe kommt. Intelligente Zonierung der Grundrisse, hochwertige Holzfenster, eine Solarthermie-Anlage und eine gute Dämmung der Gebäudehülle sind Bausteine des Gesamtkonzeptes, das mit dem Landespreis für Architektur und Energie im Jahr 2008 ausgezeichnet wurde.

Thermographie
Thermographie

Projektverantwortliche

Bauherr:
privat

Architektur:
bk2a architektur seit 2015 firmierend als karzelwillkarzel architektur, Köln

Tragwerk:
Henneker, Zillinger Ingenieure Bonn

TGA:
BRITABO, Bern Raschke, Bonn

Fotographie:
karzelwillkarzel Architekten, Köln

 

Projektdaten

Nutzfläche:
220m²

Bruttorauminhalt:
730m³

Grundstücksgröße:
610m²

Baukosten (DIN 276):
ca. 0,25 Mio. Euro Brutto

 

Publizität

Landespreis für Architektur und Energie

Baukunst NRW

Generalanzeiger Bonn, 16.04.2009