Deutzer Höfe - Wohnen und Leben in Köln-Deutz

Wohnen für Studierende, Köln

 

stadtnah, lebendig, verdichtet

Situation

Das Projekt Deutzer Höfe entwickelt Wohnungen für Studierende in direkter Campus-Nähe zu zwei Hochschulstandorten. Die TH Köln wird in den kommenden 10 Jahren auf dem Campus Deutz, in 500 Meter Entfernung, baulich vollständig erneuert werden. Die Studierendenzahlen werden von aktuell ca. 7.000 auf rund 10.000 steigen. Auf dem Deutzer Feld, in 300 Meter Entfernung ist 2017 die Hochschule für öffentliche Verwaltung mit ca. 2.000 Studierenden eröffnet worden. Der Bedarf campusnahen Wohnens wird in den kommenden Jahren deutlich steigen. Die Deutzer Höfe schaffen 163 Wohneinheiten für bis zu 223 Studierende.

Kontextbezüge
Kontextbezüge

Gebäudekonzept

Das Grundstück an der Gummersbacher Straße hat einen trapezförmigen Zuschnitt. Die Kubatur des Bauabschnitts A entwickelt sich um zwei Höfe; den zur Straße offenen, einladenden Eingangshof und den geschützten Studierendenhof. Der mäanderförmige Neubau staffelt sich von einem fünfgeschossigen Baukörper zu einem 8-geschossigen Kopfbau hoch, der einen stadträumlichen Abschluss der Mantelbebauung des Stadthauses bildet und den Stadtausgang von Deutz markiert.

Kontextbezüge
Kontextbezüge
Situationsplan
Situationsplan

Kubaturentwicklung

Aus Perspektive der Bahnlinie und entlang der Gummersbacher Straße wirkt er als Portal für den Stadtteil Deutz. Zur Bahnlinie ist die Kubatur primär homogen und geschlossen ausgebildet und wird durch eine großflächige, transluzente Verglasung gegliedert, die den Hof vor dem Schall der Bahn schützt. Der Vorhof zieht das öffentliche Leben bis in das Foyer hinein und formuliert damit eine klare Eingangssituation. Der achtgeschossige Kopfbau orientiert sich an der Höhe des Nachbargebäudes zur Linken.

Maximierte Ost-Süd-West-Ausrichtung
Maximierte Ost-Süd-West-Ausrichtung

Nachhaltigkeit

Der Neubau wird als KFW-Effizienzhaus 40+ realisiert. Um diesen hohen Standard zu erreichen wird eine hochwärmedämmende Gebäudehülle mit Klinkerschale und hochdämmenden Fenstern erstellt. Die Ost-, Süd- und Westfassade sind zu ca. 50% transparent konzipiert, um solare Gewinne zu ermöglichen. Die Nordfassade ist nur zu ca. 20% transparent ausgebildet. Alle eingesetzten Materialien sind auf Nachhaltigkeit und Langlebigkeit ausgelegt.

Schallschutz von Hof und Wohnungen
Schallschutz von Hof und Wohnungen

Energetischer Standard

Die primäre Energieversorgung des Gebäudes erfolgt über den vorhandenen Fernwärmeanschluss. Alle Wohnräume und Nutzflächen erhalten eine kontrollierte, dezentrale Lüftung mit Wärmerückgewinnung; der Heizwärmebedarf des Gebäudes wird dadurch sehr gering ausfallen. Die Stromenergieversorgung wird mit bis zu 180.000 kwh/a durch die gebäudeintegrierte Photovoltaikanlage auf dem Dach und in der Fassade unterstützt. Die vertikalen Photovoltaikflächen thematisieren die Energieeffizienz in der Fassadengliederung. Der groß ausgelegte Pufferspeicher im Kellergeschoss ermöglicht eine  durchgängige Nutzung.

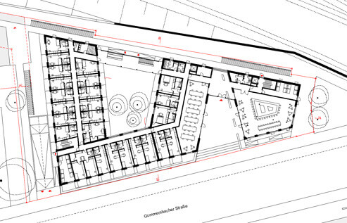
Grundriss Erdgeschoss
Grundriss Erdgeschoss
Querschnitt
Querschnitt
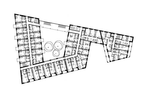
Grundriss Regelgeschoss
Grundriss Regelgeschoss
Längsschnitt
Längsschnitt

Projektverantwortliche

Bauherr:
privat

Architektur:
karzelwillkarzel Architekten, Köln

Tragwerk:
Horz + Ladewig, Köln

Haustechnik:
Energiebüro vom Stein, Köln

Elektrotechnik und Netzwerkplanung:
Elektro Mahlberg GmbH, Bornheim

Landschaft:
karzelwillkarzel Architekten, Köln

Brandschutzplanung:
Ingenieurbüro Schallenberg, Krefeld

Visualisierung:
Digitalarchitektur, Gerd Knobling, Düsseldorf

Projektdaten

Nutzfläche:
6.500m²

Bruttorauminhalt:
42.135m³

Grundstücksgröße:
3.800m²