Campuserweiterung Hochschule Niederrhein

Hörsaalzentrum und Institute für Energieeffizienz und Wirtschafts­ingenieurwesen

kommunikativ, flexibel, dynamisch

Konzept

Wir haben den Campus Krefeld Süd durch einen Neubau für zwei Institute erweitert. Mit dem Gebäude bilden wir eine neue Grünachse aus, die ein Portal für den Standort schafft und setzen ein Zeichen entlang der Hauptstraße Obergath. Die Leitidee für das Gebäude ist die Kommunikation und Vernetzung der Nutzer. Dazu organisieren wir alle hochfrequentierten Raumeinheiten in einem vollkommen transparenten Erdgeschoss und die konzentrierten Lern- und Arbeitszonen in einem homogenen, zweigeschossigen Volumen, das darüber schwebt.

Schwarzplan
Schwarzplan

Wirkung und Wirtschaftlichkeit

Mit dem Typus des Atriumhauses schaffen wir eine maximale Durchlässigkeit zwischen Nutzern und Nutzungen. Atrium, Innenraum und umgebende Landschaft verschmelzen durch großzügige Glasfassaden. Studierende und Dozenten haben von allen Ebenen im Gebäude Blickbezüge in andere Raumzonen - durch die ringförmige Organisation stärken wir das Potential informeller Kommunikation.

Krefeld hat eine lange Tradition als Web- und Seidenstadt. Wir greifen diese historische Analogie auf und umhüllen die beiden Obergeschosse mit einem feinen Metallschleier. Das Gewebe übernimmt den Sonnen- sowie Wärmeschutz und symbolisiert den Raum für eine konzentrierte Lehr-, Lern- und Forschungsatmosphäre.

Situationsplan.
Situationsplan
Grundriss 2. OG.
Grundriss 2. OG
Querschnitt.
Querschnitt
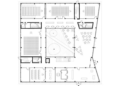
Grundriss 1. OG.
Grundriss 1. OG

Konstruktion / Technik + Energie

Wir haben das Gebäude als Betonskelettbau mit aussteifenden Sichtbetonkernen konzipiert. Die beiden Obergeschosse sind als vorfabrizierter Holzelementbau in das Skelett eingeschoben. Durch diese Bauweise ist ein hochflexibles Gebäude entstanden, das leicht auf Nutzungsveränderungen reagieren kann.

Die Kühlung von Forschungs- und Bürogebäuden ist eine größere Herausforderung als die Beheizung. Daraus haben wir ein architektonisches Thema entwickelt: Die Fassade des Gebäudes ist mehrschichtig aufgebaut. Die hochwärmegedämmte erste Haut ist umgeben von einer Struktur aus Aluminium-Streckmetall in 1,25m Abstand. Die rotierenden Lamellen dieses Metallschleiers reagieren jahreszeitabhängig auf den Sonnenstand und blocken die direkte Sonneneinstrahlung ab. Die Rotation eröffnet zu jeder Zeit Ausblicke ins Grüne Umfeld und einen hervorragenden Tageslichteintrag in das Gebäude. Als Beitrag zum Low-Tech Konzept unterstützen Nachtauskühlungsflügel die natürliche Kühlung der Büros in den Abendstunden.

Die Kühl- und Heizenergie für den Neubau wird geothermisch über 140m tiefe Bohrungen erzeugt. Die Verteilung der Energie erfolgt wasserbasiert über den Boden und die Decke des Gebäudes. Eine nachgelagerte Wärmepumpe nutzt im Winter die Erdwärme, um Heizenergie zu erzeugen. Im Sommer agiert das System invers zur Kühlung.

Fassadenschnitt.
Fassadenschnitt
Grundriss EG.
Grundriss EG

Projektverantwortliche

Bauherr:
Hochschule Niederrhein Krefeld, Krefeld

Architektur:
bk2a architektur in Kooperation mit Will Architekten seit 2015 firmierend als karzelwillkarzel Architekten, Köln

Mitarbeit:
Ante Ljubas, Nicole Schütte

Tragwerk:
Fast + Epp, Darmstadt

Landschaft:
Knüvener Architekturlandschaft, Köln

Haustechnik:
Konzept: Wortmann&Scherer, Bochum
Ausführung: IBH, Braunschweig

Brandschutz:
IB Schallenberg, Krefeld

Bauphysik:
bsp Ingenieurgesellschaft, Düsseldorf

Projektsteuerung:
Müller und Scheuvens Baubetreuung

GU:
Carl Schumacher GmbH, Wolfenbüttel

Fotographie:
Guido Erbring, Köln
Frank Schoepgens, Köln

Visualisierung:
digitalarchitektur, Gerd Knobling

Projektdaten

Bruttogeschossfläche:
6.600m²

Nutzfläche:
5.700m²

Bruttorauminhalt:
28.500m³

Grundstücksgröße:
17.850m²

Grüne Mitte:
ca. 5.200 m²

Baukosten (DIN 276):
17,6 Mio. Euro Brutto

Länge, Breite, Höhe:
50 x 50 x 13m

Größe Innenhof:
18 x 18m